Haus H // 42

Weiterbauen in Aachen

Holzbauweise

2025

Weiterbauen! Zwischenräume: Was können sie leisten? Wie können wir unsere Bestände zukunftstauglich machen?

Ziel ist die Transformation einer intakten, mager gebauten Aachener Doppelhaushälfte zu einer adaptiv-flexiblen Gebäudestruktur, die für das „Altern“ gewappnet ist.

Als Extrusion des Bestehenden, hebt ein Holzskelett das Atelier – zugleich Autarke Wohneinheit – über die Gartenebene. Nun barrierefrei, horizontal und oder vertikal teilbar, entsteht Raum für unterschiedliche Nutzer oder gemeinschaftliches Wohnen in Generationen.

Darunter entsteht ein Raum. Er ist da, fast 4 Meter hoch und er ist kalt – nicht beheizt und nicht gedämmt. Ein Gartensaal! Und es zeigt sich, dass gerade dieser “primitive” Raum zum neuen Ort des Lebens wird. Diese einfachen Räume erweitern den Nukleus um wertvollen Lebensraum zwischen Alt und Neu, zwischen Kalt und Warm, zwischen Norm und Verstand. Sie schaffen Lebensqualität.

LPH 1-8


Bild: Luca Claussen

Weiterbauen einer Doppelhaushälfte in Aachen - Aretz Dürr Architektur Köln
Skizze zur Nachverdichtung - Aretz Dürr Architektur Köln
Eingang über Gitterroststeg - Aretz Dürr Architektur Köln
Innenraum Atelier im Holzbau - Aretz Dürr Architektur Köln
Gartensaal, Wintergarten und Lebensraum - Aretz Dürr Architektur Köln
Aluminiumfassade Wellprofil auf Holzkonstruktion - Aretz Dürr Architektur Köln
Barrierefreie Erschließung von der Straße - Aretz Dürr Architektur Köln
Außenraumbezug zwischen Straßenseite und Garten - Aretz Dürr Architektur Köln
Glasfassade mit Balkon Wintergarten - Aretz Dürr Architektur Köln
Glastor im Holzbau - Aretz Dürr Architektur Köln
Sonnenschutzvorhang Glasfassade - Aretz Dürr Architektur Köln
Markise Sonnenschutz Glasfassade - Aretz Dürr Architektur Köln
Detail Glasfassade Stahlbau Holzbau - Aretz Dürr Architektur Köln
Gartensaal Gewächshaus Energiegarten - Aretz Dürr Architektur Köln
Holzskelett auf Betonsockel montiert - Aretz Dürr Architektur Köln
Thermovorhang Sonnenschutz Glasfassade mit Durchblick - Aretz Dürr Architektur BDA Köln
Außenliegender Sonnenschutz Vorhang Aluminium - Aretz Dürr Architektur Köln
Bauwich Fassade aus Aluminium Wellprofil - Aretz Dürr Architektur Köln
Fassade Aluminium Wellprofil hinterlüftet - Aretz Dürr Architektur Köln
Zugang zur autarken Wohneinheit über Stahlbrücke - Aretz Dürr Architektur Köln
Gitterroststeg Stahlbrücke barrierefrei - Aretz Dürr Architektur Köln
Innenraum Holzbau Oberlicht - Aretz Dürr Architektur Köln
Atelier Holzbau mit Oberlichtern - Aretz Dürr Architektur Köln
Holzbau Innenraum mit Holzoberflächen - Aretz Dürr Architektur Köln
Holzbau mit Glasfassade im Garten - Aretz Dürr Architektur Köln
Energieschnitt Wintergarten Atelier - Aretz Dürr Architektur Köln
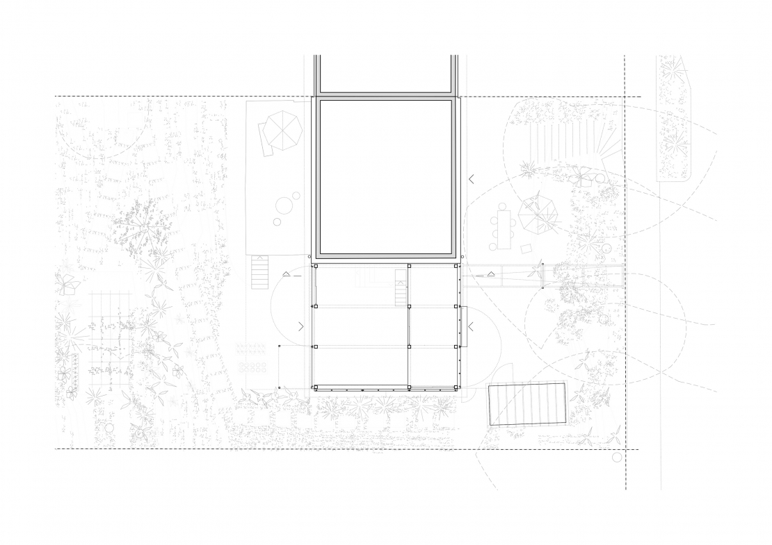
Lageplan Nachverdichtung Doppelhaushälfte - Aretz Dürr Architektur Köln
Ansicht Aluminium Fassade - Aretz Dürr Architektur Köln
Südfassade im Garten - Aretz Dürr Architektur Köln
Ostansicht Giebelseite - Aretz Dürr Architektur Köln
Querschnitt Holzbau - Aretz Dürr Architektur Köln
Grundriss Wintergarten Holzbau - Aretz Dürr Architektur Köln
Grundriss autarke Wohneinheit Atelier - Aretz Dürr Architektur Köln
Fassadenschnitt Glasfassade Wintergarten - Aretz Dürr Architektur Köln