Haus H // 42
Weiterbauen in Aachen
Holzbauweise
2025
Weiterbauen! Zwischenräume: Was können sie leisten? Wie können wir unsere Bestände zukunftstauglich machen?
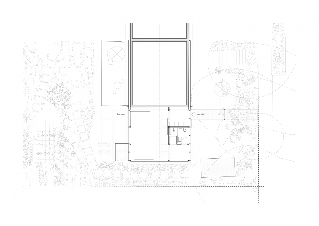
Ziel ist die Transformation einer intakten, mager gebauten Aachener Doppelhaushälfte zu einer adaptiv-flexiblen Gebäudestruktur, die für das „Altern“ gewappnet ist.
Als Extrusion des Bestehenden, hebt ein Holzskelett das Atelier – zugleich Autarke Wohneinheit – über die Gartenebene. Nun barrierefrei, horizontal und oder vertikal teilbar, entsteht Raum für unterschiedliche Nutzer oder gemeinschaftliches Wohnen in Generationen.
Darunter entsteht ein Raum. Er ist da, fast 4 Meter hoch und er ist kalt – nicht beheizt und nicht gedämmt. Ein Gartensaal! Und es zeigt sich, dass gerade dieser “primitive” Raum zum neuen Ort des Lebens wird. Diese einfachen Räume erweitern den Nukleus um wertvollen Lebensraum zwischen Alt und Neu, zwischen Kalt und Warm, zwischen Norm und Verstand. Sie schaffen Lebensqualität.
LPH 1-8
Bild: Luca Claussen
 
 
 
 
 
 
 
 
 
 
 
 
 
 
 
 
 
 
 
 
 
 
 
 
 
 
 
 
 
 
 
 
 
