Halle S // 46
Graf-Zeppelin Halle in Altenkirchen
Holzbauweise
2024
Im Industrie- und Gewerbegebiet in Altenkirchen gelegen, ist die neue Lager- und Produktionshalle der Schumann Project GmbH als Holzbinderkonstruktion in einer Bauzeit von sechs Monaten entstanden.
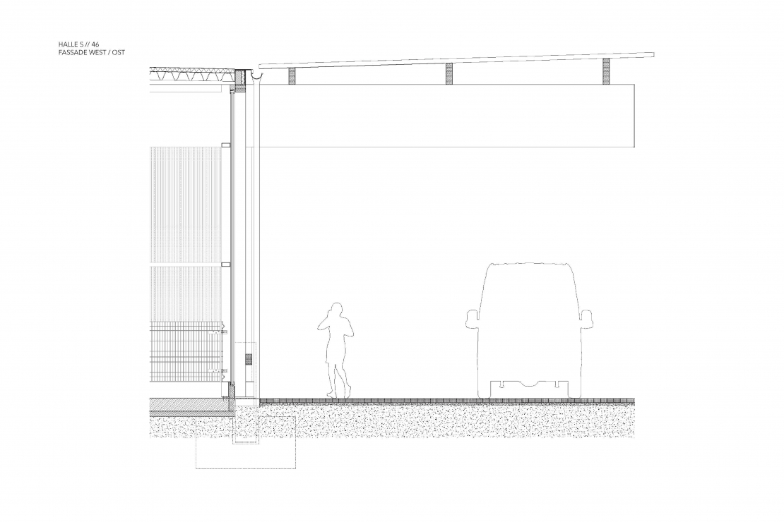
Die Primärkonstruktion besteht aus austarierten Brettschichtholzbindern im Achsraster von sechs Metern. Gelagert werden diese in den Gabeln geteilter und teileingespannter Stützen. Die weit auskragenden Binder entlasten die Feldmitten und generieren eine schlanke Bauteildimensionierung.
Umhüllt wird die Lager- und Produktionshalle von einer transluzenten Polycarbonat-Fassade mit zweifach geteilten Sektionaltoren.
LPH 1-8
Anerkennung
BDA Architekturpreis RLP SAAR 2024
Bild: Ben Schumann























