Baulücke W // 32

Baulückenschluss in Krefeld

Holzbauweise

2023

ungebaut


Bild: Aretz Dürr Architektur

Modellfoto Baulücke - Baulücke W // 32 Krefeld - Aretz Dürr Architektur BDA Köln
Skizze - Baulücke W // 32 - Aretz Dürr Architektur BDA Köln
Ansicht Nord - Baulücke W // 32 Krefeld - Aretz Dürr Architektur BDA Köln
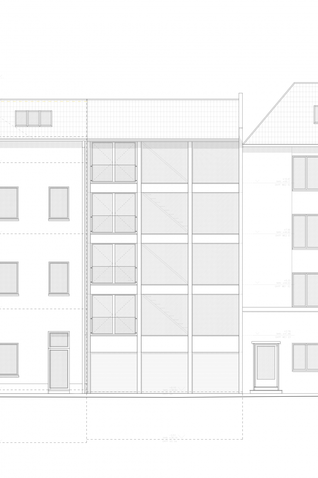
Straßenabwicklung Ansicht Nord - Baulücke W // 32 Krefeld - Aretz Dürr Architektur BDA Köln